Energieautarkes Büro- und Wohnhaus
Lechner & Lechner Architekten
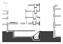
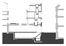
VortragWohnen und Arbeiten, vereint an einem zentralen Ort der Stadt, ist Thema dieses Vortrags. Zur Verfügung steht ein bebautes 146 m2 Grundstück in der Altstadt Salzburgs. Das Ziel ist ein autarkes, selbstbestimmtes, urbanes Leben mit zeitgemäßer Architektur im Kontext zur historischen Umgebung. Praktisch bedeutet dies ein zum Straßenraum hin geöffnetes Atelier mit 122 m2 sowie ein Untergeschoß mit 80 m2 für die variable private oder halböffentliche Nutzung. Die darüberliegenden drei Wohngeschoße mit zusammen 105 m2 schauen auf einen Dachterrassengarten, der den notwendigen privaten Freiraum im dichten Altstadtensemble ermöglicht. Großzügige Fassadenöffnungen holen den Stadt- und Straßenraum ins Innere.
Abwärme, Dünger und Brauchwasser werden über die Kläranlage zurück behalten, 5 KW Fotovoltaik kombiniert mit 5 KW Windenergie versorgen das Büro und Wohnung, mit der Restenergie werden noch Elektrofahrzeuge gespeist. Das Projekt dient als Experimentierfeld im Betrieb, wenn nicht bei uns selber, wo dann? Christine & Horst Lechner
Zum anschließenden Umtrunk mit Buffet bittet die Volksbank Salzburg.
Infos zu Anfahrt + Parkmöglichkeiten finden Sie rechts.
